REF. 1719/1750 - Bodega en renta, Industrial La Silla, Guadalupe, Nuevo León



Descripción


Bodega en renta, Industrial La Silla en Guadalupe, Nuevo León. Ubicación privilegiada a pasos de Av. Benito Juárez y Av. Maestro Israel Cavazos, y rápido acceso a las principales vialidades del área metropolitana de Monterrey. Dentro de Parque industrial.
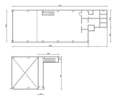
La propiedad cuenta con 135 m² de oficinas, tres baños distribuidos entre el área de bodega y oficinas, cuatro cajones de estacionamiento techados y un espacio adicional sin techar. Dispone de cortina enrollable de 4.5 x 5 metros y puerta de seguridad independiente.
Ofrece una altura mínima de 7.20 metros y máxima de 9.20 metros, techo de lámina engargolada con louvers para ventilación natural, piso de concreto armado pulido de 12 cm de espesor, transformador de 220V trifásico e iluminación LED industrial.
Espacio ideal para almacenamiento, logística, manufactura ligera o centro de distribución.
**Precio mas I.V.A.**

Contacto


  • Oficina: 1719 - Alfa Inmobiliaria Poniente
  • Sikara Distrito Urbano en oficina 416 piso 4 en calle Av. Paseo de los Leones 1001, Cumbres Madeira, Monterrey, Nuevo León
  • Teléfonos: 8110950600
  • Whatsapp: 8112565563
  • Email: [email protected]
  • Web: www.alfaponiente.com

Información


  • Precio de renta: 82,800 MXN
  • Año de construcción : 2025
  • M2 construidos : 910 m2
  • Medios baños : 3
  • Estacionamientos : 5
  • Estado de conservación : buen estado

Comparte esta Propiedad:

WhatsApp
Facebook
Twitter
Email

CONTACTO

Escríbenos, será un placer atenderte.